Giữa nhịp sống sôi động của Thủ Đức, một ngôi nhà 1 trệt 3 lầu 5x16m hiện đại được kiến tạo không chỉ để ở, mà còn để nâng niu từng khoảnh khắc sum vầy. Với thiết kế tinh tế, tối ưu công năng và không gian xanh hài hòa, ngôi nhà chính là nơi biến ước mơ về một tổ ấm tiện nghi, ấm áp thành hiện thực. Đây không chỉ là nơi để trở về, mà còn là điểm tựa bình yên, nơi lưu giữ yêu thương của cả gia đình.
Từ những buổi trao đổi cùng kiến trúc sư Song Phát đến sự đồng hành chặt chẽ với chủ đầu tư, từng chi tiết trong căn nhà 1 trệt 3 lầu 5x16m đều được chăm chút tỉ mỉ để mang lại một không gian sống trọn vẹn. Và nếu bạn đang tìm thêm ý tưởng thiết kế, hãy tham khảo ngay mẫu nhà 4 tầng mặt tiền 5m với phong cách hiện đại không kém.
Ấn tượng với mặt tiền thoáng rộng của mẫu nhà 1 trệt 3 lầu 5x16m
Mặt tiền nhà 1 trệt 3 lầu 5x16m được thiết kế hiện đại với những đường nét vuông vức, khỏe khoắn, kết hợp cùng mảng kính lớn giúp không gian luôn tràn ngập ánh sáng tự nhiên. Ban công các tầng được bố trí hợp lý, vừa tạo điểm nhấn thẩm mỹ vừa mang lại sự thoáng đãng cho ngôi nhà.
Gam màu sáng trung tính phối hài hòa với vật liệu ốp giả gỗ và lan can kính cường lực, tạo nên tổng thể sang trọng, tinh tế nhưng vẫn gần gũi và ấm áp. Đây chính là mặt tiền lý tưởng cho một tổ ấm vừa đẹp mắt vừa tiện nghi giữa lòng phố thị.


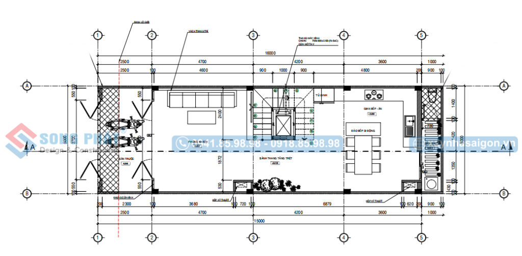
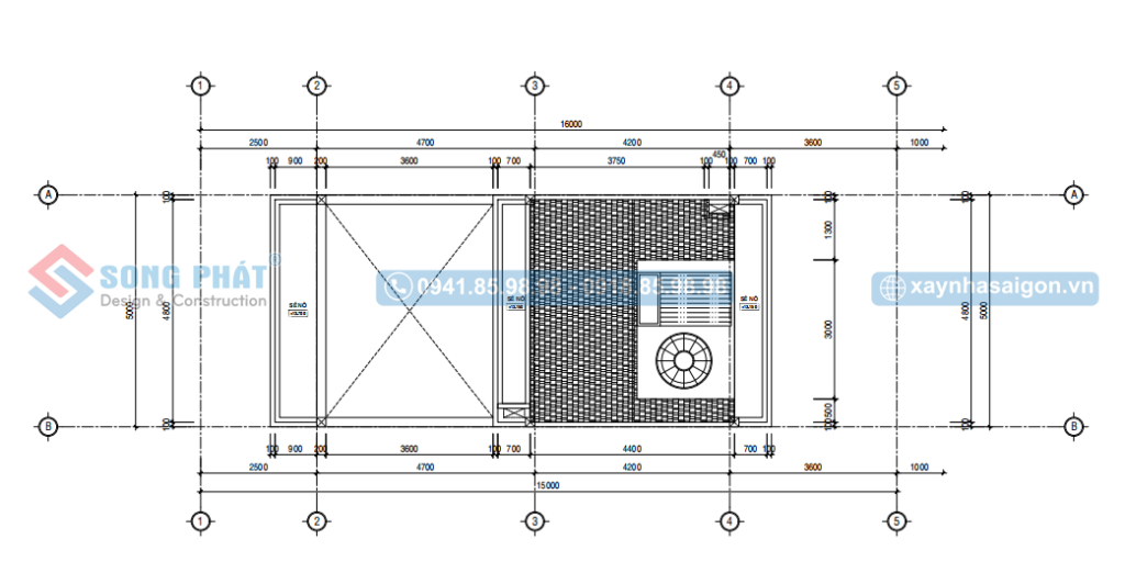
Chi tiết mặt bằng công năng nhà 1 trệt 3 lầu 5x16m tiện nghi
Tầng trệt của nhà 1 trệt 3 lầu 5x16m được thiết kế tối ưu với công năng khoa học. Phía trước là sân để xe thoáng rộng, tiếp nối là phòng khách hiện đại tạo không gian sinh hoạt chung ấm cúng. Khu vực cầu thang và tiểu cảnh được bố trí ở giữa, vừa ngăn cách các không gian vừa tăng sự thoáng mát cho ngôi nhà. Phía sau là bếp và phòng ăn tiện nghi, kết hợp với sân sau làm nơi giặt phơi và lấy sáng tự nhiên, đảm bảo không gian luôn thông thoáng và tiện lợi cho gia đình.

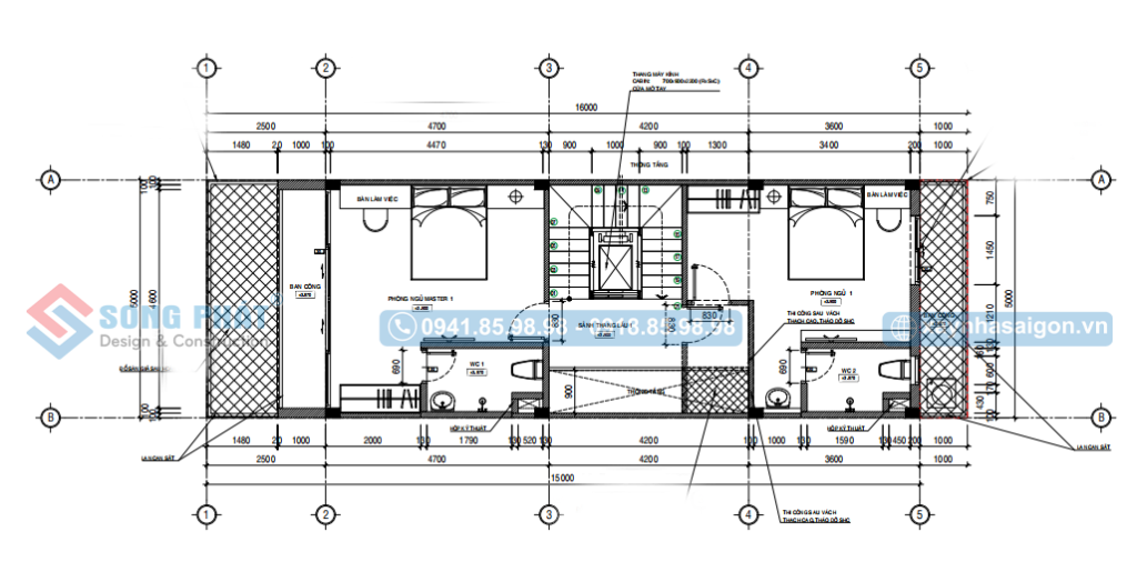
Không gian lầu 1 được bố trí gồm 2 phòng ngủ rộng rãi, mỗi phòng đều có nhà vệ sinh riêng, đảm bảo sự riêng tư và thoải mái cho từng thành viên. Ở giữa là khu vực sảnh thang và phòng sinh hoạt chung, tạo nơi kết nối, trò chuyện ấm cúng cho gia đình. Nhờ cách sắp xếp hợp lý này, nhà 1 trệt 3 lầu 5x16m vừa đáp ứng nhu cầu nghỉ ngơi, vừa mang đến sự tiện nghi và gắn kết trong cuộc sống hằng ngày.

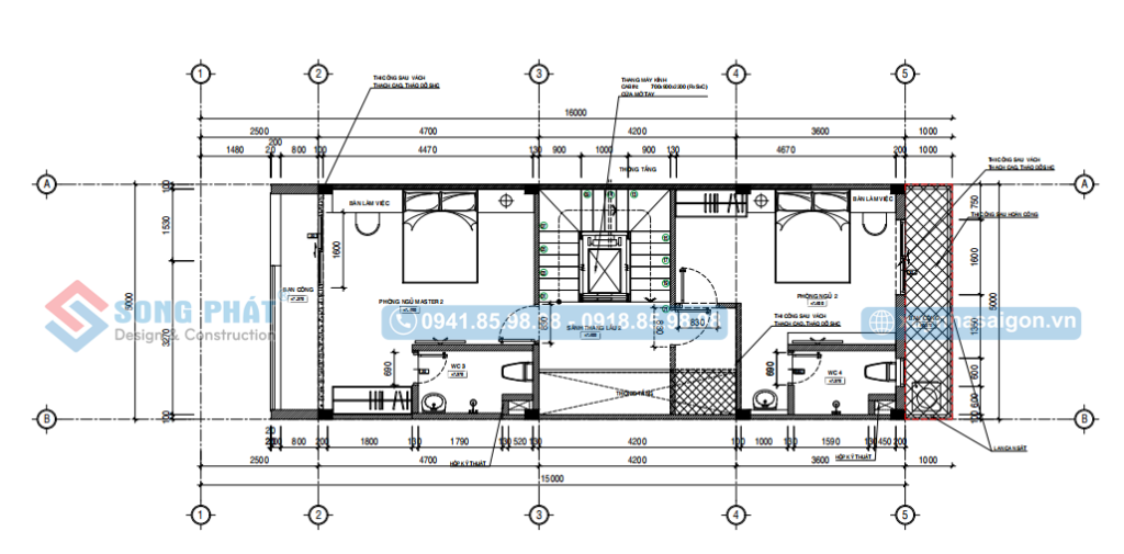
Lầu 2 được bố trí khoa học với 2 phòng ngủ có nhà vệ sinh khép kín, tạo sự riêng tư và thuận tiện trong sinh hoạt. Ở giữa là sảnh thang rộng thoáng, kết hợp cùng khu sinh hoạt chung để các thành viên có thêm không gian gắn kết. Nhờ thiết kế hợp lý này, nhà 1 trệt 3 lầu 5x16m vừa đáp ứng tối đa nhu cầu nghỉ ngơi, vừa mang lại sự tiện nghi và thoải mái trong từng không gian sống.

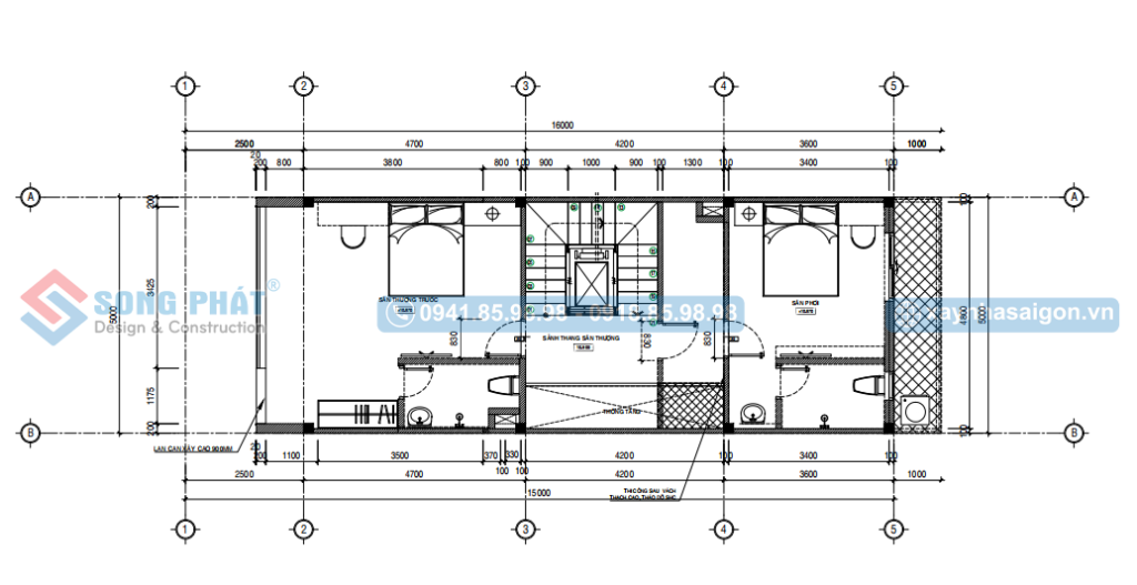
Sân thượng được bố trí thông thoáng với 2 phòng ngủ tiện nghi, đi kèm nhà vệ sinh riêng để đảm bảo sự thoải mái cho từng thành viên. Ở trung tâm là sảnh thang kết hợp phòng sinh hoạt chung, tạo thêm không gian thư giãn và gắn kết gia đình. Nhờ cách sắp xếp hợp lý này, nhà 1 trệt 3 lầu 5x16m không chỉ đáp ứng đầy đủ nhu cầu sử dụng mà còn mang lại sự cân bằng giữa riêng tư và sum vầy.

Khu vực mái được thiết kế gọn gàng, gồm hệ thống mái che cầu thang và khoảng không thoáng để bố trí bồn nước, máy năng lượng mặt trời cũng như các thiết bị kỹ thuật. Nhờ sự sắp xếp khoa học này, ngôi nhà 1 trệt 3 lầu 5x16m vừa đảm bảo tính thẩm mỹ cho tổng thể, vừa tối ưu công năng, mang lại sự tiện lợi trong quá trình sử dụng lâu dài.

Từ phối cảnh mặt tiền sang trọng, hiện đại cho đến từng chi tiết công năng được bố trí khoa học, ngôi nhà 1 trệt 3 lầu 5x16m không chỉ là một công trình kiến trúc mà còn là tổ ấm trọn vẹn cho gia đình. Sự hài hòa giữa thẩm mỹ và tiện nghi mang đến một không gian sống vừa đẹp mắt vừa gần gũi, nơi mỗi thành viên đều tìm thấy sự thoải mái và gắn kết.
Nếu bạn đang tìm kiếm một giải pháp xây nhà chìa khóa trao tay uy tín, Song Phát chính là người bạn đồng hành đáng tin cậy, sẵn sàng biến ước mơ về tổ ấm lý tưởng của bạn thành hiện thực. Hãy liên hệ ngay để được tư vấn và cùng nhau kiến tạo nên ngôi nhà mơ ước!
Xem thêm: Khám phá nhà ống 4 tầng 4m5x11m 5 phòng ngủ với mặt tiền xéo độc đáo
Tác giả: Kiến Trúc Xây Dựng Song Phát.
Xây Dựng Sự Trường Tồn.
Thông tin liên hệ:
Công Ty CP ĐT Kiến Trúc Xây Dựng Song Phát.
Địa chỉ: 36/1 Bàu Cát 1, P. Tân Bình, TP.HCM
Số 2, Đường số 3, P. Thông Tây Hội, TP.HCM
95 Đường số 37, P.Hiệp Bình, KDC Vạn Phúc, TP.HCM
Xưởng nội thất: 28/6 Tân Chánh Hiệp 07, Phường Tân Chánh Hiệp, Q. 12, TP. HCM
Hotline: 0941.85.98.98 – 0918.85.98.98
Email: songphat@xaynhasaigon.vn



















