Kiến trúc không chỉ là hình khối – nó là nghệ thuật tổ chức cuộc sống. Ngôi nhà 3 tầng 72m2 của CĐT chị Huyền được khởi ngồn từ tư duy như vậy: đơn giản, logic và đầy cảm xúc. Mỗi khoảng sáng, mỗi đường nét đều mang dụng ý, góp phần định hình phong cách sống tinh gọn và hiện đại cho gia chủ.
Mỗi tầng, mỗi khoảng trống, mỗi ô cửa đều được tính toán kỹ lưỡng để mang đến sự kết nối – giữa riêng tư và mở thoáng, giữa hiện đại và gần gũi. Ở đó, ngôi nhà không chỉ đáp ứng nhu cầu sinh hoạt, mà còn trở thành không gian phản chiếu phong cách sống tinh tế, giản dị và bền vững của gia chủ.
Mặt tiền mang dấu ấn hình khối hiện đại
Điểm nhấn đầu tiên của nhà 3 tầng 72m2 chính là mặt tiền được xử lý tinh tế bằng những đường bo cong mềm mại, tạo cảm giác nhẹ nhàng và khác biệt so với lối thiết kế khối hộp thông thường. Màu xám trung tính kết hợp cùng mảng tường trắng thanh thoát giúp tổng thể trở nên hài hòa, hiện đại mà vẫn giữ được nét sang trọng.

Vật liệu ốp tường giả đá ở tầng trệt kết hợp cùng hệ cửa nhôm kính cao cấp tạo nên sự chắc chắn và sang trọng cho công trình nhà 3 tầng 72m2. Nhờ cách xử lý ánh sáng khéo léo, ngôi nhà 3 tầng 72m2 luôn có sự giao hòa giữa không gian trong và ngoài, giúp từng tầng đều đón được nguồn sáng tự nhiên. Ban công rộng cùng hệ đèn chiếu sáng âm trần góp phần tôn lên vẻ hiện đại của ngôi nhà, đồng thời làm nổi bật từng đường nét kiến trúc vào ban đêm.

Giải pháp thiết kế và công năng thông minh cho nhà 4 tầng 4x14m
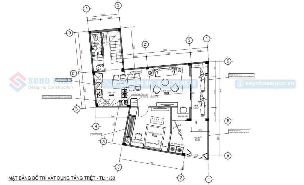
Cấu trúc tầng trệt nhà 3 tầng 72m2 thể hiện sự hợp lý khi Kiến trúc sư khéo léo tận dụng hình dạng khu đất khuông vuông vức để sắp xếp không gian theo dòng di chuyển tự nhiên, giúp việc sinh hoạt diễn ra liền mạch mà không gò bó. Phòng khách, bếp và các khu vực chức năng được kết nối với nhau vừa đảm bảo tính riêng tư, vừa tối ưu sự thông thoáng. Cách xử lý này không chỉ giúp ngôi nhà tiết kiệm diện tích mà còn tạo cảm giác rộng rãi và tiện nghi hơn so với diện tích thực.

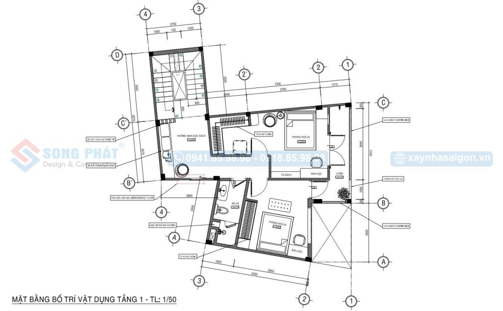
Ở tầng 1 của, yếu tố cân bằng giữa riêng tư và kết nối được KTS xử lý rất tinh tế khi hai phòng ngủ được bố trí ở hai hướng khác nhau, giúp tối ưu khả năng đón sáng và gió tự nhiên, đồng thời giảm thiểu tiếng ồn trong sinh hoạt. Khoảng không gian đọc sách nhỏ ở giữa tầng đóng vai trò như điểm nghỉ – vừa tạo sự chuyển tiếp nhẹ nhàng giữa các khu vực, vừa tăng giá trị thư giãn cho nhà 3 tầng 72m2.

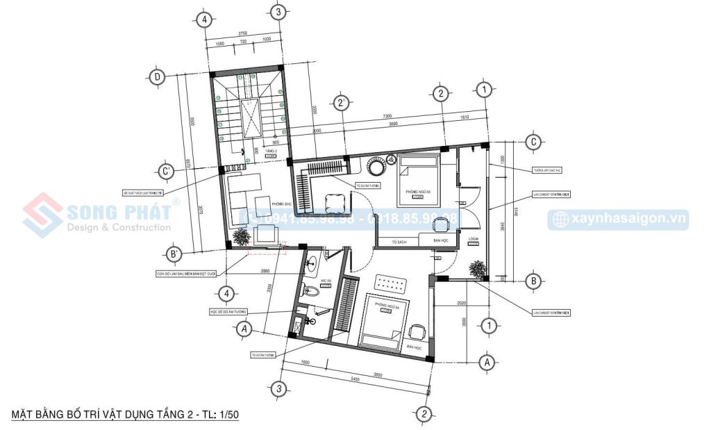
Hai phòng ngủ tại lầu 2 tương tự lầu 1 khi được bố trí đối xứng qua khu vực sinh hoạt chung, tạo nên một trục kết nối tự nhiên giữa các thành viên. Phòng sinh hoạt chung nhà 3 tầng 72m2 đóng vai trò là trung tâm của tầng – là nơi cả gia đình có thể trò chuyện, thư giãn hay cùng nhau xem phim. Việc bố trí thêm logia nhỏ giúp không gian luôn thoáng sáng, mang lại cảm giác dễ chịu và tăng cường sự kết nối với thiên nhiên.

Tầng mái của nhà 3 tầng 72m2 được thiết kế với sự tính toán kỹ lưỡng để tối ưu hiệu quả sử dụng và đảm bảo tính bền vững lâu dài cho công trình. Khu vực này bố trí bồn nước, máy năng lượng mặt trời và hệ thống thoát mái hợp lý, giúp vận hành ổn định và tiết kiệm năng lượng.
Bên cạnh yếu tố kỹ thuật, hình khối mái được xử lý gọn gàng, đồng bộ với tổng thể kiến trúc hiện đại của ngôi nhà, vừa mang tính thẩm mỹ cao vừa đảm bảo khả năng chống thấm, chống nóng hiệu quả cho không gian bên dưới.

Tiến độ thi công nhà 3 tầng 72m2
















Tổng thể nhà 3 tầng 72m2 là minh chứng cho một thiết kế hướng đến sự tinh gọn, tiện nghi và phù hợp với nhịp sống đô thị hiện đại. Từ mặt tiền đến từng tầng chức năng, mọi chi tiết đều được tính toán kỹ để vừa đảm bảo thẩm mỹ vừa đáp ứng trọn vẹn nhu cầu sinh hoạt của gia đình.
Không chỉ là nơi ở, nhà 3 tầng 72m2 còn là không gian truyền cảm hứng – nơi cân bằng giữa công năng và cảm xúc, giữa nhịp sống sôi động bên ngoài và sự an yên bên trong. Đây chính là giá trị bền vững mà Song Phát luôn hướng đến trong mỗi công trình của mình.
Xem thêm: Mẫu nhà 3 tầng mặt tiền 10m mang hơi thở kiến trúc tương lai
Tác giả: Kiến Trúc Xây Dựng Song Phát.
Xây Dựng Sự Trường Tồn.
Thông tin liên hệ:
Công Ty CP ĐT Kiến Trúc Xây Dựng Song Phát.
Địa chỉ: 36/1 Bàu Cát 1, P. Tân Bình, TP.HCM
Số 2, Đường số 3, P. Thông Tây Hội, TP.HCM
95 Đường số 37, P.Hiệp Bình, KDC Vạn Phúc, TP.HCM
Xưởng nội thất: 28/6 Tân Chánh Hiệp 07, P. Trung Mỹ Tây, TP. HCM
Hotline: 0941.85.98.98 – 0918.85.98.98
Email: songphat@xaynhasaigon.vn



















