Ở các khu dân cư hiện nay, những mẫu nhà trệt 2 lầu 4x17m đang trở thành lựa chọn phổ biến cho gia đình trẻ vì đáp ứng tốt ba yếu tố: tối ưu đất, đủ công năng và thể hiện được thẩm mỹ riêng. Không chỉ dừng lại ở một nơi để sinh hoạt, nhà ở ngày nay được xem như không gian giúp tái tạo năng lượng sau những giờ làm việc, là nơi kết nối các thế hệ và phản ánh phong cách sống của gia chủ.
Song Phát nhìn nhận mỗi công trình là một bài toán thực tế – có yêu cầu, có giới hạn nhưng luôn có cơ hội bứt phá về giải pháp. Từ kết cấu, thông gió, lấy sáng cho đến thẩm mỹ mặt tiền, tất cả đều cần được cân nhắc dựa trên nhu cầu sử dụng và đặc điểm lô đất. Đó là lý do thiết kế phải song hành cùng thi công, để ngôi nhà hoàn thiện đạt đúng chất lượng và hình ảnh như mong muốn ban đầu của chủ đầu tư. Cùng Song Phát khám phá mẫu nhà trệt 2 lầu 4x17m của CĐT anh Thiện khu vực Thủ Đức dưới đây nhé!
Điểm nhấn mặt tiền tinh tế cho nhà trệt 2 lầu 4x17m
Mặt tiền của mẫu nhà trệt 2 lầu 4x17m là một tuyên ngôn kiến trúc hiện đại, tập trung vào việc tạo ra sự chuyển động thị giác mạnh mẽ. Điểm nhấn trung tâm là mảng tường trắng lớn với những đường cong mạnh mẽ. Dải khối cong phá vỡ hoàn toàn sự cứng nhắc của khối hộp nhà phố tiêu chuẩn.
Ngôn ngữ thiết kế được KTS sử dụng rất tinh giản với màu trắng chủ đạo, làm nổi bật hình dáng mềm mại của các đường cong.Thiết kế thông minh này đã biến mặt tiền thành một công trình nghệ thuật, thể hiện đẳng cấp thẩm mỹ mà vẫn tối ưu hóa cấu trúc của căn nhà trệt 2 lầu 4x17m.

Khám phá bố trí công năng khoa học bên trong nhà trệt 2 lầu 4x17m
Mặt bằng tầng trệt thể hiện rõ ràng triết lý tối ưu hóa diện tích hẹp dài đặc trưng của mẫu nhà trệt 2 lầu 4x17m. Phòng khách và sân trước được thiết kế mở, tối đa hóa chiều rộng 4m để tạo cảm giác thoáng đãng ngay khi bước vào. Điểm đắt giá là khu vực giếng trời kết hợp cầu thang giữa nhà, đóng vai trò như một lõi thông gió và lấy sáng tự nhiên, giúp phá vỡ sự bí bách thường thấy của nhà ống. Bếp và phòng ăn được đặt phía sau, tận dụng ánh sáng từ sân sau, đảm bảo sự riêng tư và thông thoáng cần thiết.

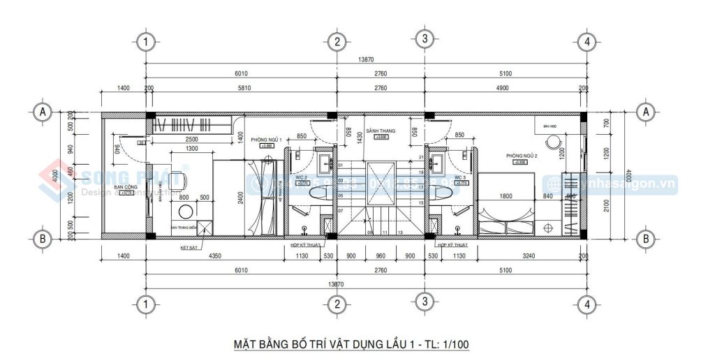
Mặt bằng Lầu 1 được bố trí với hai phòng ngủ chính, thể hiện sự ưu tiên rõ rệt cho sự thoải mái và riêng tư. Phòng ngủ master được đặt ở phía trước, kết nối trực tiếp với ban công, đảm bảo tầm nhìn và sự lưu thông không khí tốt nhất. Cả hai phòng ngủ đều được trang bị nhà vệ sinh riêng biệt và có chiều rộng tối đa 4m, giúp tối ưu hóa không gian nội thất. Đây là cách bố trí thông minh, biến khu vực nghỉ ngơi thành một không gian tiện nghi, yên tĩnh cho mẫu nhà trệt 2 lầu 4x17m.

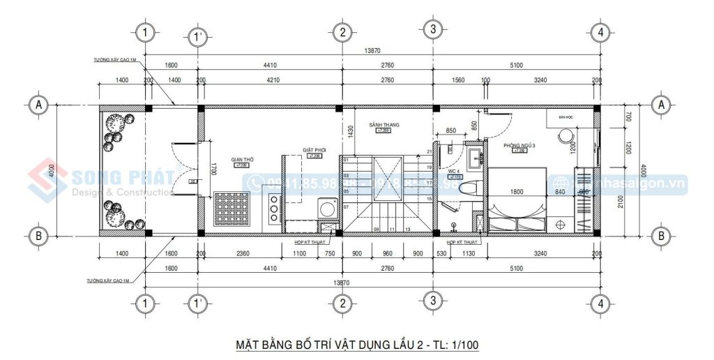
Tại lầu 2, phòng ngủ 3 được đặt phía sau, tận dụng ban công nhỏ để thông thoáng. Khu vực thờ cúng và không gian sinh hoạt chung được bố trí ở khu vực phía trước với ban công rộng, tạo ra một khu vực đa năng. Sự kết hợp giữa giặt phơi và ban công phía trước không chỉ giúp tối ưu hóa công việc nhà mà còn tạo một không gian mở lý tưởng để thư giãn hoặc trồng cây, đảm bảo sự linh hoạt tối đa cho nhà trệt 2 lầu 4x17m.


Việc thiết kế mẫu nhà trệt 2 lầu 4x17m không chỉ là giải quyết bài toán diện tích hẹp dài, mà còn là câu chuyện làm thế nào để tạo ra một không gian sống phù hợp với nhịp sống hiện đại. Từ mặt tiền độc đáo, bố trí công năng khoa học đến khả năng lấy sáng – thông gió hiệu quả, công trình của anh Thiện cho thấy rằng một thiết kế tốt có thể nâng tầm trải nghiệm sống mà không cần diện tích quá lớn.
Song Phát tự hào đồng hành với chủ đầu tư ở từng giai đoạn – từ ý tưởng đến khi bàn giao – để mỗi ngôi nhà không chỉ hoàn thiện về kỹ thuật, mà còn hoàn chỉnh về cảm xúc và giá trị sử dụng lâu dài.
Xem thêm: Nhà tân cổ điển 4 tầng 4x17m có thang máy kính khẳng định đẳng cấp gia chủ
Tác giả: Kiến Trúc Xây Dựng Song Phát.
Xây Dựng Sự Trường Tồn.
Thông tin liên hệ:
Công Ty CP ĐT Kiến Trúc Xây Dựng Song Phát.
Địa chỉ: 36/1 Bàu Cát 1, Phường 14, Q.Tân Bình, TP.HCM
Xưởng nội thất: 28/6 Tân Chánh Hiệp 07, Phường Tân Chánh Hiệp, Q. 12, TP. HCM
Hotline: 0941.85.98.98 – 0918.85.98.98
Email: songphat@xaynhasaigon.vn




















